- Woonoppervlakte
- Circa 100 m²
- Perceeloppervlakte
- Circa 96 m²
- Bouwjaar
- Gebouwd in 2010
- Aantal kamers
- 4 kamers (3 slaapkamers)
Voordat deze woning op de vrije markt wordt aangeboden, krijgen huurders van een sociale huurwoning van Portaal, Woonwaarts, Talis en SSH& in de gemeenten Nijmegen, Wijchen, Beuningen en Druten voorrang om deze woning te kopen. Wil je als huurder in aanmerking komen voor deze voorrangsregeling? Maak dan uiterlijk 1 juli 2025 je interesse kenbaar bij de verkopende makelaar. Daarna is er geen garantie op bezichtigen en deelname.
Welkom in deze charmante hoekwoning, gelegen op een unieke plek aan het water!
Met scholen, enspeeltuinen is de Huurlingsedam dé plek voor jonge gezinnen die een rustige, veilige en kindvriendelijke omgeving zoeken. E n dat allemaal op steenworp afstand van het bruisende centrum van Wijchen.
Deze hoekwoning woning ligt aan een autoluw pleintje met voldoende parkeergelegenheid voor de aanwonende. Nabij de woning ligt een bergingencomplex waarin je eigen privé (fietsen)berging is gesitueerd.
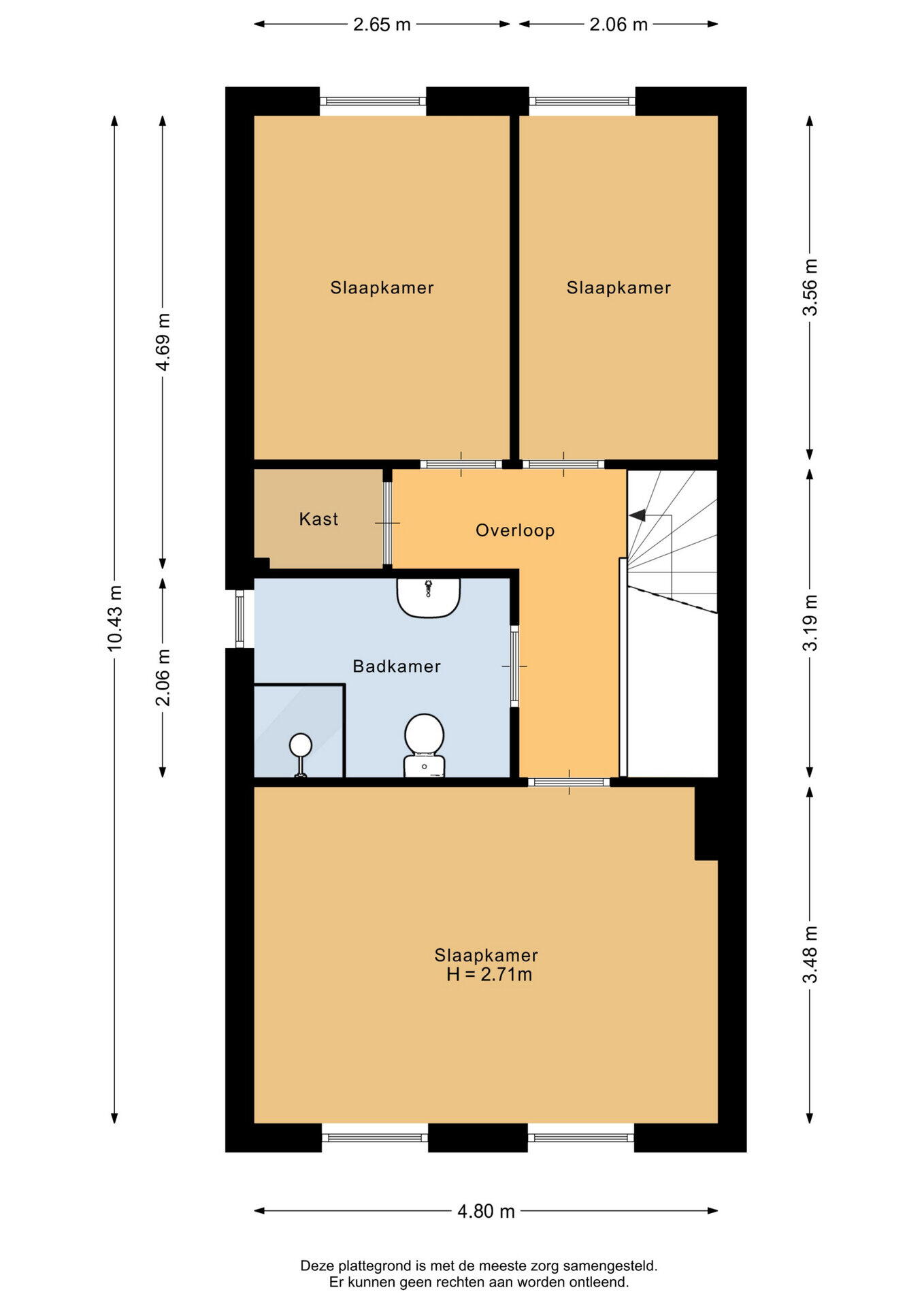
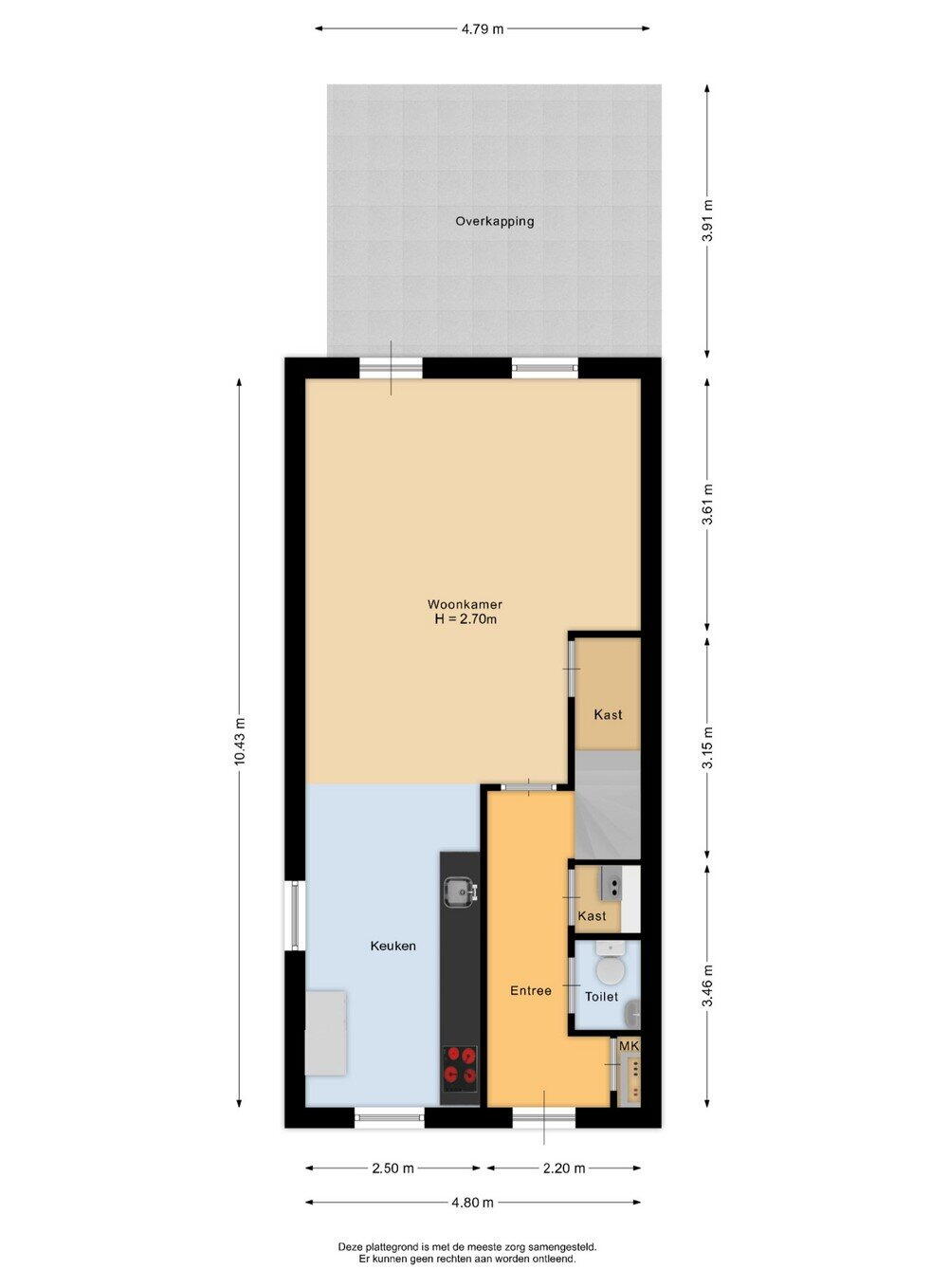
Indeling:
Begane grond:
Entree, hal met toilet en fontein, meterkast, trapopgang, woonkamer met provisiekast en deur naar de achtertuin, lichte open keuken in rechte opstelling voorzien van inbouwapparatuur waaronder een inductiekookplaat, afzuigkap, oven,
koel-vriescombinatie en vaatwasser.
1e verdieping:
Overloop, 3 slaapkamers, fraaie lichte badkamer voorzien van regendouche , tweede toilet en wastafel.
Het terras ligt aan het water op het oosten!
Bijzonderheden:
- De woning ligt aan een straat met voldoende parkeergelegenheid;
- Basisschool op loopafstand;
- Terras met overkapping;
- Begane grond en 1ste verdieping voorzien van een laminaatvloer;
- Intergas c.v. combiketel, bouwjaar 2010;
- Projectnotaris Bruggink & van Beek Notarissen te Wijchen
- De taxatiewaarde is € 415.000,-, deze wijkt af van de vraagprijs. Vraagprijs is leidend.
- Zelfbewoningsplicht/verhuurverbod en anti-speculatiebeding van 4 jaar van toepassing;
Overdracht
- Vraagprijs
- € 435.000 k.k.
- Status
- Verkocht
- Aanvaarding
- In overleg
Bouw
- Object type
- Eengezinswoning, hoekwoning
- Soort bouw
- Bestaande bouw
- Bouwjaar
- 2010
- Soort dak
- Dwarskap bedekt met pannen
Oppervlakte en inhoud
- Woonoppervlakte
- 100 m²
- Perceeloppervlakte
- 96 m²
- Inhoud
- 371 m³
- Externe bergruimte
- 7 m²
- Gebouwgeb. buitenruimte
- 19 m²
Indeling
- Aantal kamers
- 4 kamers (3 slaapkamers)
- Aantal badkamers
- 1 badkamer
- Badkamervoorzieningen
- Toilet, douche, wastafel
- Aantal woonlagen
- 2 woonlagen
- Voorzieningen
- Mechanische ventilatie, rolluiken
Energie
- Energielabel
- A
- Energielabel registratie
- 30-01-2025
- Isolatie
- Dakisolatie, muurisolatie, vloerisolatie, hr glas
- Verwarming
- Cv-ketel
- Warm water
- Cv-ketel
- Cv ketel
- Intergas combiketel gas gestookt uit 2010 (eigendom)
Buitenruimte
- Ligging
- Aan water, aan rustige weg, in woonwijk
- Tuin
- Achtertuin
- Afmetingen achtertuin
- 15 m² (3 meter diep en 5 meter breed)
- ligging tuin
- Gelegen op het westen en en bereikbaar via achterom
Bergruimte
- Schuur / berging
- Vrijstaande houten berging
Garage
- Soort garage
- Geen garage
Parkeergelegenheid
- Soort parkeergelegenheid
- Openbaar parkeren
Indicatie hypotheeklasten
Eigen inleg:
Spaargeld / overwaarde
Rente:
Laagste 10-jaars rente
Laagste 10-jaars rente
2,78% - Centraal Beheer - NHG
3,04% - Centraal Beheer - 80%
Laagste 20-jaars rente
3,29% - Centraal Beheer - NHG
3,52% - Centraal Beheer - 80%
Laagste 30-jaars rente
3,41% - Centraal Beheer - NHG
3,7% - Argenta - 80%
Hypotheek:
Bruto maandlasten: € 0 p/m
Netto maandlasten: € 0 p/m
Hoe berekenen we dit?
Het rentepercentage is gebaseerd op de laagste 10 jaars vaste rente voor één hypotheekdeel. De vermelde rente (3.04% zonder NHG) is gecontroleerd op 27-04-2026. Deze berekening is gebaseerd op een annuïteitenhypotheek die volledig wordt afgelost, waarbij de maandlasten gedurende de gehele looptijd gelijk blijven. De werkelijke rente en netto maandlasten kunnen variëren, afhankelijk van uw persoonlijke situatie en de hypotheekverstrekker. Raadpleeg een financieel adviseur voor een nauwkeurige berekening en advies. Aan deze berekening kunnen geen rechten worden ontleend; het dient enkel als indicatie.
Documentatie
Kadastrale kaart
Leefomgeving
Brochure
Plattegronden PDF
WOZ waarderapport
BAG uittreksel
Bezoek onze website
Inloggen move.nl
Bezichtiging
Bod uitbrengen
Waardebepaling
Zoekopdracht
Alles downloaden
Zonnegrenzen bekijken
Op de kaart
Inwoners in Wijchen
Cijfers voor postcodegebied 6603
- Totaal aantal inwoners
- 36260 inwoners
- Mannen
- 49%
- Vrouwen
- 51%
Inwoners in Wijchen
Cijfers voor postcodegebied 6603
- tot 15 jaar
- 12%
- 15 tot 25 jaar
- 13%
- 25 tot 35 jaar
- 19%
- 45 tot 65 jaar
- 34%
- 65 en ouder
- 21.7%
Huishoudens in Wijchen
Cijfers voor postcodegebied 6603
- Eenpersoons zonder kinderen
- 27%
- Meerpersoons zonder kinderen
- 32%
- Huishoudens zonder kinderen
- 59%
Huishoudens in Wijchen
Cijfers voor postcodegebied 6603
- Huishoudens met één kind
- 20%
- Huishoudens met meerdere kinderen
- 21%
- Huishoudens met kinderen
- 41%
Woningen in Wijchen
Cijfers voor postcodegebied 6603
- Woningen voor 1945
- 12%
- Woningen tussen 1945 en 1965
- 11%
- Woningen tussen 1965 en 1975
- 13%
- Woningen tussen 1975 en 1985
- 17%
- Woningen tussen 1985 en 1995
- 6%
Woningen in Wijchen
Cijfers voor postcodegebied 6603
- Woningen tussen 1995 en 2005
- 6%
- Woningen tussen 2005 en 2015
- 27%
- Woningen na 2015
- 9%
- Huurwoningen
- 40%
- Koopwoningen
- 60%
Overige in Wijchen
Cijfers voor postcodegebied 6603
- Gemiddelde WOZ waarde
- € 309.000,-
- Personen onder de 65 met uitkering
- Niet beschikbaar
Overige in Wijchen
Cijfers voor postcodegebied 6603
- Adressen per km²
- 509
- Stedelijkheid (schaal 1 op 5)
- 40%
Korte feiten over Wijchen
Wijchen is de hoofdplaats van de gemeente Wijchen in de Nederlandse provincie Gelderland. De plaats is met 36.625 inwoners (op 1 januari 2021) de grootste in de gelijknamige gemeente van bijna 41.000 inwoners. Wijchen ligt aan de zuidgrens van Gelderland, tegen Noord-Brabant aan.
Indien u vragen heeft of u wilt een bezichtiging inplannen, dan kunt u gebruik maken van het formulier hiernaast. Er zal daarna op korte termijn contact met u worden opgenomen.
St. Annastraat 18
6524 GC, Nijmegen
024 360 7055 nijmegen@driessenmakelaardij.nl www.driessenmakelaardij.nlContact opnemen
Al 40 jaar uw huismakelaar
Ondernemende makelaar met ambitie
U wilt een huis kopen, verkopen of laten taxeren. Het liefst schakelt u een betrouwbare makelaar in bij u in de buurt. Maar hoe vindt u precies de makelaar die het best bij u past? Het aanbod is al zo groot.
Driessen Makelaardij maakt uw keuze een stuk gemakkelijker. Hoe? Allereerst zijn we al veertig jaar een begrip in de regio. Met een kantoor in Wijchen en in Nijmegen kennen wij de lokale huizenmarkt op ons duimpje. En niet onbelangrijk: de huizenmarkt kent ons. ‘Want vaak is de eerste stap van een woningzoeker de stap naar ons kantoor.’ Hierdoor weten wij vraag en aanbod snel bij elkaar te brengen en perfect in te spelen op de wensen van klanten en potentiële klanten. Bovendien zijn we aangesloten bij de NVM, de grootste brancheorganisatie in de makelaardij. Onze mensen zijn dus uitstekend in staat het hele aan- en verkooptraject van begin tot eind professioneel te begeleiden.
Uw ambitie is onze ambitie. Dat wil zeggen: u verwacht van ons dat we tot het uiterste gaan u die kwaliteit te bieden waarom we al zo lang bekend staan. Daar mag u ons aan houden!
Nieuwste reviews
-
Tolhuis 7618
Snel en makkelijk bereikbaar. Goede communicatie. Uitstekende kennis van de markt. Deskundig ,vriendelijk en betrouwbaar.
-
Molenstraat 43 G
Deskundig, hartelijk, snel en tegen een scherpe prijs.Wij zijn ontzettend tevreden over Mario en Maartje van Driessen Makelaardij.
-
Horstacker 2309
Mario is zeer deskundig. Heeft goed geadviseerd. De bezichtigingen heel goed gepland. Ik ben door het kantoor goed op de hoogte gehouden.Mij...